GC House

Value:
£750 000
Client:
Private
Status: Complete
Collaborators: Star Design Associates (structural engineering)
Photography: Adrián Vázquez
Builder: nuspace
Year: 2017
Description:

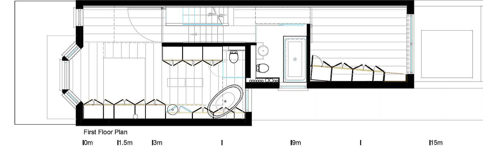
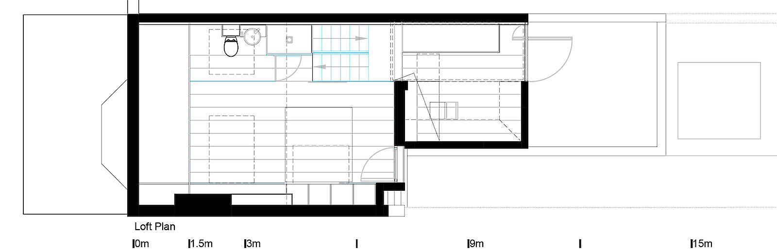
Natural light was at the heart of this project. Born out of the need to expand a Victorian property for a growing family, the core ambition was to create a flexible living space that reflected a new approach to contemporary design, characterised by light and simplicity.


Minimal sightlines and subtle textures generate a sense of relaxation and harmony, whilst glass and douglas fir run throughout the home to create a series of interconnected spaces that inspire social and flexible living. A glass staircase links all floors, allowing light to flow effortlessly through the property, with views up through the home to create a sense of space and continuity.


The project involved a complete renovation of a Victorian terraced house in West London, and included a kitchen extension, loft and basement conversion. The design built within the façade of a Victorian home, and sought to modernize it whilst remaining respectful to the existing exterior and setting, creating a flexible living space filled with light within the surrounds of a period property.

GC House in Fulham by inaki leite design. Bespoke design for kitchen with oak cantilever dining and mate white cabinets